沈阳

国王湖280平中式风格

发布时间:2022-07-08 13:57:38

5489
  • 户型:四居室
  • 面积:280㎡
  • 地址:国王湖
  • 风格:中式风格
设计理念
对于家居装修中的中式风格来说,要体现传统的中式风格,还是要通过对于房屋中的空间感来设计。对于建筑的设计是一种装修风格的主要体现,传统中式风格的居室主要包含厅堂、卧室和书房等三个主要区域。室内的空间需要达到一个平衡的设计,同时典型的中式风格也很讲究隔断的处理,此外还需要有阴阳平衡和气场圆通等主要的设计理念。
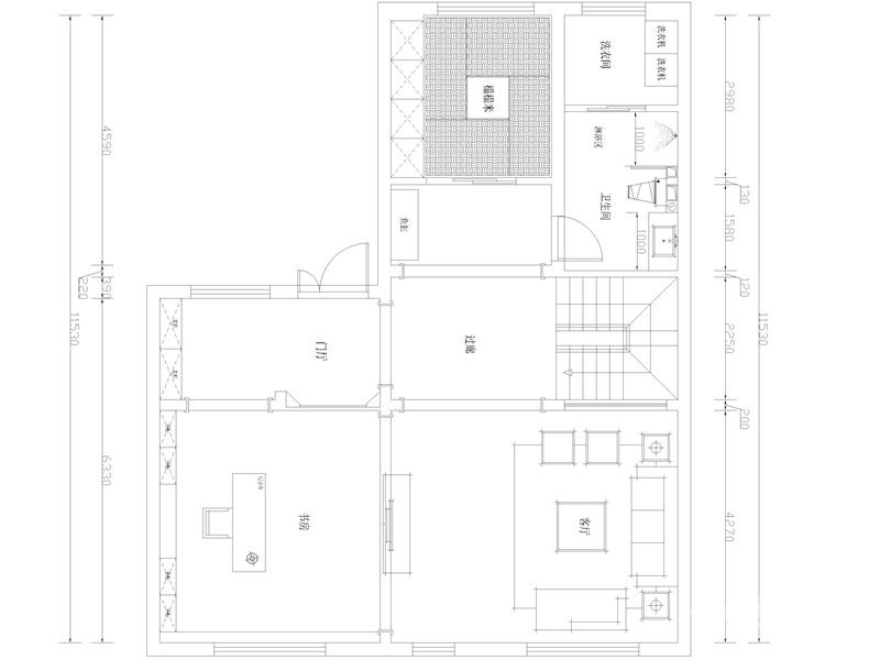
户型图
客厅
本案设计师
林树峰
方林装饰设计师
  • 从业18年
  • 案例5套

擅长风格:美式风格,新中式风格,后现代

相似案例推荐

查看更多

通过视、听、嗅、触四觉的沉浸式体验打造,令人留下深刻的空间记忆。点线面构造出视觉质感,拉出远近层次关系。悠悦旋律流淌于空间的同时,绿植的清新与檀香的静谧,创造出独特的嗅觉记忆。亲肤感的面料材质舒适、放松,于细节中提高生活品质的饱满度。

顾学斌

水岸公馆140平中式风格

  • 三居室
  • 140㎡
  • 水岸公馆

"大气磅礴的东方文化精髓雕琢于古木家具的纹理, 素胚勾勒出的青花笔锋由浓转淡, 走笔宣纸渲染出的仕女图被巧妙收藏, 冉冉檀香透过窗的烟雾下, 演绎出一个传奇家族的荣耀......"

张鸿涛

越秀岄湖郡600平中式风格

  • 别墅
  • 600㎡
  • 越秀岄湖郡

热门装修攻略

查看更多
Copyright © 2000-2023 方林家居装饰有限公司
辽ICP备12003026号-4
网站备案信息

预约免费量房

免费上门精准测量规划

马上预约